开云体育app 回乡建房的最高田地: 不与邻里争险阻, 只在院里看春秋。

执行中许多东说念主回乡建房时常濒临着一都深邃的题:屋基地紧挨着邻居的后墙,窗户开大了怕隐秘全无,开小了室内又像黑洞。如安在密集的墟落邻里间,既能体面地保留私东说念主领地,又能把阳光和清风请进房子里?
今天咱们要聊的这套双层民居决策。它拔除了农村常见的“欧式大立面”和“推窗见邻居”的无语,而是转过身来,取舍了极具机灵的内向型设战略略。
这不单是是一次空间的重构,更是一场对于乡村居住好意思学的深入念念考。它通过多重庭院的穿插,在零散的左近环境中,为居者框出了一派自力新生、诗意栖居的极乐寰宇。

一、 局面与邻里的“分寸感”:堤防间的建筑机灵
这块屋基地东、西、北三面均紧贴邻房。在地盘资源日益弥留的乡村,这种三面合围的局面是许多建房东挥之不去的烦懑——房子盖满了,室内像个常年不见光的“深井”;窗户开多了,又凯旋正对着邻居的起居生存,隐秘庄严无处安放。
贪图亮点:以守为攻,留出呼吸感
面对这种眇小,本案并未取舍“寸土必争”的传统满铺样貌,而是展现了极佳的建筑克制力:
主动堤防限制: 建筑主体并未死贴红线,而是通过科学的间距扬弃,在四周预留出了设施不一的生态缓冲带。这种“堤防”看似点燃了建筑面积,实则巧妙化解了农村建造中最为敏锐的墙脚地界纠纷,体现了“远亲不如隔邻”的东说念主文设施。

打造“物理呼吸口”: 留出的赋闲并非废墟,而是成为了整栋房子的“换气扇”。不管外部邻房若何紧逼,这层缓冲带都能确保当然风在建筑四周酿成对流,有用惩办了底层易湿气、空气淹留的恶疾。
视野的“借景与斥逐”: 息争景不雅贪图,这些堤防出的空间陶冶了高度符合的植物。这不仅防碍了邻居投向室内的视野,更让自家的窗景从“看邻居墙壁”变成了“看自家绿植”,好意思满了物理空间的“断舍离”与格式空间的“包摄感”。
这种以空间换品性的作念法,将蓝本被迫受限的转折,升沉为了一种向内滋长、稳重且自捏的建筑步地。

二、 庭院布局:不啻一个院子,而是“微局面”系统
这套房子的精髓在于其多重庭院的贪图。它冲突了单一后院或前院的步地,酿成了表里会通的生态空间:
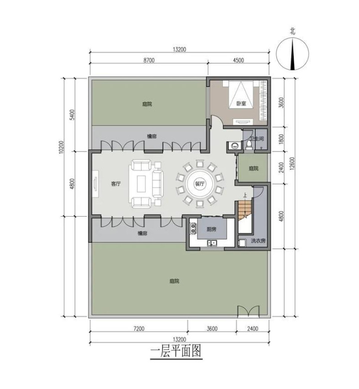
南北双大院: 一层南北两侧各领有一个超大面积的庭院。南向大院是主要的户外行动区,北向庭院则提供了静谧的配景绿植景不雅。
点睛之笔——中心天井: 在餐客厅与楼梯间接壤处,开云体育app巧妙贪图了一个袖珍内院。这个贪图像是一个“光筒”,惩办了房屋深处的采光祸患,让阳光和当然风不错深入到建筑里面。
檐廊艺术: 一层客厅南北两侧均设有深度符合的檐廊(廊下空间)。这种贪图不仅能遮阳避雨,更是室内向室外过渡的“灰空间”,夏天坐在这里摇扇歇凉,最是安逸。

三、 建筑功能布局:动静分区,主次分明
一层:全龄友好的应付中心
横厅贪图: 步入室内,客餐厅一体化的横厅布局让东说念主咫尺一亮。辉煌的视觉恶果,即便举办十东说念主以上的家庭约会也绰绰多余。
老东说念主房关爱: 东北角缔造了一间自带采光窗的卧室,紧邻卫生间,最猛进度便捷老东说念主生存,减少了爬楼职责。
家政闭环: 厨房、洗衣房与楼梯间筹议在东南角,酿成了高效的家政流线,与生存起居区互不搅扰。

二层:诡秘的居住与多功能空间
套房尊享: 二层主卧配备了孤独的衣帽间和超大露台。早晨推窗便是院景,诡秘性极佳。
多功能室: 二层中心位置留出了一个开阔的多功能室。这里既不错是孩子的游戏室,也不错是全家东说念主的家庭影院。

这套自建房决策最打动东说念主心的方位,不在于使用了何等端淑的石材或复杂的造型,而在于它对局面局限性的暖热反击。它用一种近乎修行般的自省姿态,在邻里喧嚣的方寸之间,运用多重庭院和天真布局,到手地为家东说念主围合出一派宁静的私属六合。
它向咱们讲明:信得过的高档感,是对光影的激昂运用,是对隐秘的非凡尊重,更是对家政动线与生存细节的入微关爱。
能够您的屋基地相通三面受限,能够您也在为采光与隐秘的博弈而苦恼,但请记取,优秀的建筑贪图从不被局面所困,而是稳妥当然、借重而为。愿这套贪图能为您提供一份参考灵感,让您的那座遐想家园,不仅能招架风雨开云体育app,更能安放灵魂,成为眷属缅想里最良善、最有生命力的注脚。
真钱三公棋牌游戏官方网站
备案号: